Водогрейный промышленный отопительный котел КВр теплопроизводительностью 0.25 МВт предназначен для получения горячей воды температурой на выходе 95 - 115 °С рабочим давлением 0,1 - 0,3 (1,0 - 3,0) МПа (кгс/см), работает в системах централизованного теплоснабжения с принудительной циркуляцией воды. Прямое назначение агрегата - отопление, горячее водоснабжение, вентиляция помещений. Устанавливается в блочно модульных котельных, производственно отопительных, и котельных жилищно-коммунального хозяйства. Промышленные водонагревательные котлы 0.25 МВт на твердом топливе нашли широкое применение для отопления гаражей, цехов, ангаров, складов, административных зданий, автосервисов, станций СТО, школ, садиков, клубов, магазинов, больниц, санаториев, теплиц, птицефабрик, фермерских хозяйств и подобных производственных помещений.
Водогрейный котел КВр мощностью 0,25 МВт применяется для отопления помещений площадью от 1500 м до 2600 м в зависимости от высоты потолков. Точно мощность теплогенератора подбирается по объему отапливаемых помещений и региону установки, на территории России климатические зоны очень разнообразны, от критически холодных, до теплых, соответственно количество требуемого тепла для объектов в этих регионах будет различаться. Подобрать мощность котла для вашего населенного пункта в Магадане вы можете с помощью нашего калькулятора.
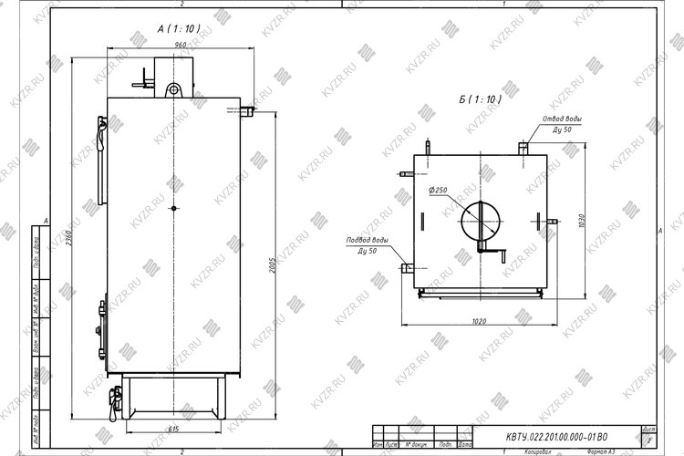
Водогрейный угольный котел КВр 0 25 МВт - стальной, вертикальный, водотрубный, напольный, в легкой обмуровке полной заводской готовности, с ручной подачей топлива, работающий на твердом топливе - каменный и бурый уголь. Материал изготовления трубной части - стальная труба сталь 10 или 20.
Система элементов котла работающих под давлением состоит из радиационной и конвективной поверхностей нагрева. Радиационная поверхность нагрева образуется двумя боковыми, передним (фронтовым) и задним экранами. Проем для подачи топлива выполнен на фронтовой панели.
Конвективная поверхность нагрева выполнена из параллельно установленных в шахматном порядке труб.
Циркуляция воды в котле организована по многоходовой схеме. Для выпуска воздуха при заполнении котла водой в верхней части котла установлен штуцер с вентилем (краном шаровым) Ду 15. Для продувки и дренажа котла в нижней части котла установлен дренажный штуцер с вентилем (краном шаровым) Ду 20.
Снаружи устанавливается каркас, на котором крепится обмуровка. Обмуровка выполняется из теплоизоляционного материала и защитной обшивки из полимерного листа. В обмуровке имеется дверь для очистки поверхностей нагрева от отложений в процессе эксплуатации.
Подвод воздуха в водогрейный котел КВр 0.25 МВт осуществляется за счет разряжения в топке, путем подсоса через дверку - заслонку в зольный короб под колосниковую решетку.
Загрузка топлива осуществляется с фронта котла через топочную дверь вручную. Образующиеся в топочной камере дымовые газы выходят из топочной камеры через расположенную над топкой конвективную ступень теплообмена и двигаясь вверх выводятся в выходное окно на потолке котла.
Сверху котла стоит поворотный шибер для регулировки тяги в газоходе. С помощью шиберов котел КВр 0,25 МВт легко регулируется по мощности в процессе эксплуатации.
Подробная инструкция как выводить оборудование на мощность и затем регулировать ее, представлена в паспорте и руководстве по эксплуатации.
Для долгой и надежной работы водогрейного котла на твердом топливе вам потребуется только правильно подобрать и смонтировать вспомогательное оборудование – насосы и дымовую трубу, а затем регулярно производить очистку внутренних и внешних поверхностей нагрева.
Твердотопливный промышленный котел КВр 0 25 МВт с колосниками для котельной поставляется двумя блоками максимальной заводской готовности. Топка устанавливается в котельной на специально подготовленную ровную поверхность и закрепляется анкерными болтами. На топку устанавливается котельный блок. Смонтированный котел подсоединяется по воде, воздуху и газам, монтируется вся запорная арматура на подводящем и отводящих трубопроводах, на дренажах и воздушниках, предохранительные устройства (предохранительные клапана) и измерительные приборы.
Сразу на котельный блок может быть установлена дымовая труба диаметром 250 и высотой 6 метров. Возможно также газоход вывести за пределы котельной и дымовую трубу установить снаружи здания. После полного монтажа необходимо произвести гидравлическое испытание котла давлением не более 1,5 Рраб.
Перед пуском котла в работу необходимо произвести ревизию тепловых сетей. Устранить утечки и произвести промывку теплосети.
Загрузка каменного и бурого угля осуществляется с фронта через топочную дверь вручную. Распределение свежего топлива по топочной решетке должно быть равномерным. Регулирование расхода воздуха и тяги проводится шиберами.
Тепловая нагрузка котла может варьироваться в пределах 50 – 100% от номинальной мощности котла. Производительность котла КВр мощностью 0.25 МВт регулируется путем изменения количества твердого топлива, подаваемого в топку на горение и количества подаваемого на горение воздуха.
Для обеспечения надёжной работы, расход воды через котел и давление воды должны четко соответствовать параметрам, указанным в паспорте.
Для предотвращения конденсации водяных паров из дымовых газов и как следствие налипание золовых частиц на конвективную поверхность нагрева, рекомендуется держать температуру воды на входе в котел при работе на пониженной нагрузке выше 55 °C.
В случае снижения разряжения в топочной камере и ухудшения тяги следует произвести остановку котла для проведения работ по прочистке газоходов котла и дымовой трубы от осевшей золы и сажи.
Для очистки конвективной части котла необходимо открыть дверку-люк конвективной части. Очистку осуществлять путем механическим способом при помощи скребков, либо обдувкой сжатым воздухом при помощи компрессора до полной очистки поверхностей нагрева.
Более подробная информация содержится в паспорте и инструкции по монтажу и эксплуатации котла КВр 0.25 МВт.
Завод производитель осуществляет транспортирование котельного оборудования ж/д контейнером и автотранспортом. Для оценки стоимости доставки пришлите заявку, и мы оперативно проведем расчет стоимости доставки котельного оборудования до вашего города или населенного пункта. Для вашего удобства предлагаем оформить заявку и уточнить интересующую вас информацию онлайн.
Для того чтобы купить водогрейный котел КВр 0,25 МВт в Магадане, вы можете сделать заявку в отдел сбыта по телефону (38-52) 29-97-41 (42), либо оформить заявку онлайн. Наши менеджеры дадут консультацию по подбору вспомогательного оборудования для выбранных вами моделей и рассчитают стоимость котла с доставкой до вашего региона в г Магадан.
Котельный завод РЭП осуществляет производство котлов КВр 0.25 МВт в г Барнауле по типовым проектам и по техническому заданию, согласованному с заказчиком – производим доработки котла под вашу котельную: зеркальное отображение подвода теплоносителя, изготавливаем опускные газоходы, делаем дополнительные топочные дверки и подобное.
Цена водогрейного котла КВр-0.25 в Магадане включает в себя котельный блок в изоляции, колосники, вентили, затворы, манометры, термометры и предохранительные клапаны. Ниже приведена подробная информация.
Для эффективной и надежной работы котла КВр-0.25 в вашей котельной вам потребуется дополнительное оборудование - автоматика ЩУК, насос сетевой и подпиточный, газоходы и переходники для газового тракта, дымовая труба. Мы предлагаем рассмотреть типовые варианты комплектации.
В случае если у вас на объекте уже имеется насосное и тягодутьевое оборудование, мы можем проверить совместимость котла КВр-0.25 нашего производства и вашего оборудования.
Можем изготовить нестандартные узлы для выполнения быстрого монтажа котла - газоходы и узлы обвязки.
Типовую схему монтажа котла вы можете посмотреть во вкладке схемы подключения и монтаж.
Водогрейный твердотопливный стальной отопительный котел КВр-0.25, предназначен для получения горячей воды номинальной температурой на выходе из котла от 95 до 115 °С рабочим давлением до 0,6 (6,0) МПа (кгс/см), используемой в системах централизованного теплоснабжения на нужды отопления, горячего водоснабжения. Устанавливается в производственных, промышленных и отопительных котельных.
Монтаж водогрейного котла КВр-0.25 и вспомогательного оборудования в котельной должно производиться в соответствии с проектом и учетом требований СП 89.13330. 2016 «Котельные установки. Актуализированная редакция СНиП II-35-76» и «Правил устройства и безопасной эксплуатации паровых котлов с давлением пара не более 0,07 МПа (0,7 кгс/см2), водогрейных котлов и водоподогревателей с температурой нагрева воды не выше 388 К (115 С). Правильный монтаж котла – залог его надежной и долгой работы.
Чтобы правильно подключить котел КВр-0.25 в котельной необходимо оставить проемы для обслуживания оборудования во время эксплуатации. На представленной здесь схеме указаны их минимальные размеры. Кроме того, в данной примерной схеме монтажа водогрейных котлов и оборудования указан перечень минимально необходимого вспомогательного оборудования для правильной работы котла.
К вспомогательному оборудованию при подключении промышленного водогрейного котла КВр относят - щит управления котлом, насос циркуляционный, насос подпиточной воды, бак запаса воды, расширительный мембранный бак, дымовую трубу, систему газоходов и дымосос, золоуловитель (по желанию).
В случае если подпиточная вода не соответствует по своим характеристикам требованиям к питательной воде, необходимо предусмотреть систему водоподготовки котловой воды.
Для котельных 1 категории, являющиеся единственным источником тепла системы теплоснабжения и обеспечивающие потребителей первой категории, не имеющих индивидуальных резервных источников тепла, необходимо предусмотреть полное резервирование оборудования – подключение 2 (двух) котлов, насосов, ТДМ. Пунктиром обозначено оборудование для резервирования.
Для котельных 2 категории, включающие в себя промышленные и производственные котельные резервирование нужно предусматривать по необходимости.
Образец тепловой схемы подключения оборудования в котельной приведен на данной схеме. При эксплуатации очень важно грамотно осуществить подключение оборудования, установить все контрольно измерительные приборы, для контроля параметров работы котельной и запорную арматуру для оперативного переключения потока теплоносителя при плановой или аварийной остановке оборудования. Данную схему можно использовать как пример для разработки под свой объект или заказать у нас разработку индивидуальной схемы для вашей котельной.
Водогрейные котлы производства Котельный завод "РЭП" соответствуют строгим стандартам качества и безопасности. Завод производит котлы КВр-0.25 в соответствии с требованиями ГОСТ 30735-3001 по Техническим Условиям завода.
Котлы имеют все необходимые сертификаты соответствия Техническим регламентам Таможенного союза:
Водогрейный котел КВр-0.25 имеет гарантийный срок 24 месяца и срок работы при соблюдении правил монтажа и эксплуатации оборудования 10 лет.

Отзыв о работе котла КВр производства Котельный завод "РЭП", проработавшего на АО "Водоканал" г. Белокуриха 10 лет. Интервью предоставил заместитель главного директора по производству Суходоев Сергей Николаевич.

Интервью с главным энергетиком базового комплекса "Сводор" г. Барнаул о работе водогрейного котла нашего производства, отапливающего предприятие с 2008 года.
Водогрейный котел КВр-0.25, мощностью 0.25 МВт используется для отопления производственных, административных и жилых зданий. Котельный завод производит и поставляет весь перечень сопутствующего котельного оборудования- насосы, газоходы, автоматику, дымососы, дымовые трубы, циклоны и прочее. Специалисты нашего завода бесплатно подберут сопутствующее оборудование, а в случае необходимости, выполнят проектирование, монтаж и пуско-наладку котельной установки.
Подобрать мощность котла по площади важно учитывая не только площадь и объем здания, но и тип зданий и климатические данные региона.
На нашем сайте калькулятор расчета мощности котла учитывает тепло, требуемое на возмещение тепловых потерь через строительные конструкции и потери, вызываемые инфильтрацией (проникновением) наружного воздуха, через их неплотности и периодически открываемые двери.
Наружный строительный объем здания должен определяться умножением площади горизонтального сечения, взятого по внешнему обводу здания на уровне первого этажа на полную высоту здания, измеренную для панельных зданий: от уровня чистого пола (нулевой отметки) до верхней плоскости теплоизоляционного слоя чердачного покрытия, для остальных строений от уровня земли.
Расчетная температура воздуха в отапливаемых зданий принимается в зависимости от типа и назначения здания:
В случае если требуется отопление различных по типу зданий, теплопотребление каждого считается отдельно, полученные значения складываются и подобрать мощность котла нужно в соответствии с общей суммарной мощностью каждого отдельно стоящего задания.
Климатические условия вашего региона принимаются в соответствии с СП 131.13330 Строительная климатология. Данные по всем регионам России занесены в наш калькулятор расчета мощности котла.
Подобрать мощность котла по площади с учетом потребностей объекта в тепле на вентиляцию и горячую воду возможно только с более детальным расчетом. Его вы можете заказать в отделе сбыта котельного завода отправив заявку на электронный адрес sb@kvzr.ru или позвонив по телефонам (38-52) 29-97-41, 29-97-42.