string(4) "1391"

Золошлакоудаление УСШ в Магадане

Версия
для печати
В наличии на складе Цена в рублях с НДС 1 150 000
Получите скидку
у менеджера
Цена на золошлакоудаление УСШ с доставкой от 1 150 000 рублей с НДС
Доставка ТК в г. Магадан и по России
Безналичный расчет
Опросный лист
  • Технические
    характеристики
  • Описание
    товара
  • Сертификаты и
    гарантии
  • Отзывы о
    продукции

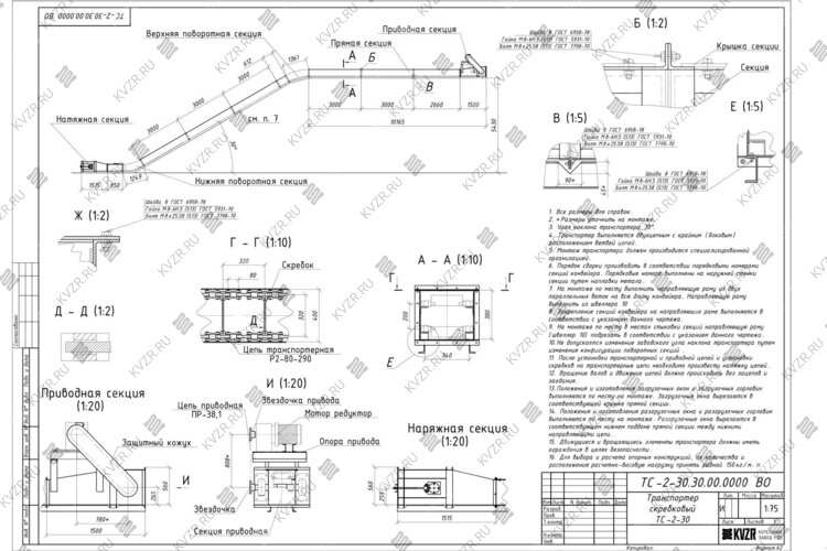
Скребковый цепной транспортер удаления золы и шлака из под котлов за пределы котельной.

Технические характеристики золошлакоудаления УСШ

Производительность минимальная, т/ч 0.5
Производительность максимальная, т/ч 10
Размер кусков, не более, мм 100
Длина транспортера максимальная, м 50
Длина транспортера минимальная, м 5
Марка Установка скребковая шлакоудаления - УСШ
Тип Шлакозолоудаление, Транспортер
Количество поворотных секций, шт 1-2
Угол перегиба поворотных секций до, ˚ 30-36
Шаг тяговой цепи, мм 100-250
Бренд KVZR

Золошлакоудаление УСШ

Золошлакоудаление УСШ представляет собой скребковый конвейер, собранные между собой последовательно стальные короба с крышками, для перемещения золы и шлака.

Золошлакоудаление УСШ устанавливают в модульных котельных установках МКУ и блочномодульных котельных БМК; в паровых и водогрейных угольных котельных с механическими топками ТШПМ, ТЛЗМ, ТЛПХ, РПК, ЗП РПК; в разных отраслях промышленности для транспортировки сыпучих материалов.

Золошлакоудаление УСШ состоит:

  • приводной секции;
  • поворотных секций;
  • прямых секций;
  • цепи;
  • скребков;
  • направляющих зубчатых колес;
  • привода;
  • автоматики управления (по согласованию с заказчиком);
  • опорно-каркасных элементов (по согласованию с заказчиком);
  • запорных органов (по согласованию с заказчиком).

Конструкция золошлакоудаления УСШ

Конструкция золошлакоудаления УСШ разрабатывается в соответствии с техническим заданием и заполненным опросным листом, согласно компоновке котельной, отличается длиной, количеством поворотных секций и расположением привода.

В концевых точках крайних коробов смонтированы валы с зубчатыми колесами для установки цепи с закрепленными на ней скребками. К одному из валов редуктором прикладывается усилие для передачи вращения зубчатых колес и соответственно движения цепи по направляющим коробов. Секции золошлакоудаления - это короба с направляющими, зубчатыми колесами, установленными на валах внутри которых перемещаются цепи с установленными на них скребками. Для удобства обслуживания, очистки коробов, регулирования узлов, а так же проведения ремонтных работ секции конвейера имеют полностью съемную крышку.

Транспортер золошлакоудаления расположен в золовом канале котельной, под сбросными участками золы и шлака механических топок водогрейных и паровых котлоагрегатов. Механизм золошлакоудаления транспортируют золу и шлаки в бункер шлака или отвал, расположенный вне котельной, из которого их вывозят спецтехникой.

Транспортеры УСШ выполняются по ГОСТ 4.21.

Монтаж золошлакоудаления УСШ

Золошлакоудаление УСШ поставляется секциями в разобранном виде, общая сборка транспортера производится на месте монтажа и выполняется в соответствии с проектом и инструкцией по монтажу и сборке. Собирается транспортер в следующей последовательности: собрать прямые секции и приводную секции, соединить горизонтальную и наклонную части при помощи поворотной секции, установить цепь со скребками в собранные секции, подключить привод и автоматику. В случае необходимости над транспортером устанавливается закрытая галерея.

Купить золошлакоудаление УСШ

Для того чтобы купить золошлакоудаление УСШ в Магадане, вы можете оформить заявку в отделе сбыта по телефону (38-52) 29-97-41 (42), либо оформить заявку онлайн. Наши менеджеры дадут консультацию по подбору вспомогательного оборудования для выбранных вами моделей и рассчитают стоимость доставки до вашего региона и населенного пункта. Также предлагаем вам выполнить проект реконструкции котельной.

Дополнительные услуги

Сертификат для конвейера .jpg
Сертификат на конвейер

Отзывы о продукции

Отзыва о товаре пока нет, будьте первыми!

Вопрос-ответ

  • Технические
    характеристики
  • Описание
    товара
  • Сертификаты и
    гарантии
  • Отзывы о
    продукции
Документы завода
  • Сертификаты завода
  • Членство в СРО
  • Аттестованная технология сварки
  • Патенты на котельное оборудование
  • Товарные знаки
Смотреть все документы
Сертификат на водогрейные котлы на твердом и жидком топливе
Сертификат на водогрейные котлы на газе и жидком топливе
Сертификат на котлы отопительные паровые КП
Сертификат на топки
Сертификат на щиты управления
Сертификат на скиповые подъемники
Сертификат на золоуловители (циклоны)
Сертификат на конвейеры скребковые
Сертификат на дробилки
Сертификат на клапаны предохранительные
Сертификат на бункер-накопитель механизированный
Сертификат на автоматику газовых горелок
Сертификат о происхождении товара форма СТ-1
Членство в СРО
Членство в СРО
Аттестованная технология сварки
Свидетельство аттестованной технологии сварки
Патент на отопительный котел
Патент на водогрейный котел
Патент на топку водогрейного котла
Патент на водогрейный газовый котел
Патент на водогрейный котел
Патент на топочное устройство твердотопливного котла
Патент на водогрейный котел
HEATEXPERT товарный знак
KVZR товарный знак
STEAMEXPERT товарный знак
Другая похожая продукция
1 135 000 р. Цена с НДС
Дробилка ДО-1М
Снято с производства
Цена по запросу
1 200 000 р. Цена с НДС
Вы просматривали эти товары
1 150 000 р. Цена с НДС
Паровой котел КП 2000 на угле
Лизинг
Вид топкиРучная, Колосники
ТопливоТвердое, Уголь
Температура пара, не более, °C130
Давление пара, не более, МПа0.17
2 675 000 р. Цена с НДС
Котел 1000 КВт уголь дрова
Лизинг
ТопливоУголь, Дрова, Твердое
Вид топкиКолосники, ОУР
Максимальная тепловая мощность, кВт1000
Отапливаемая площадь, м²7700-11000
847 000 р. Цена с НДС
Котел на древесных отходах
Лизинг
Вид топкиРучная, Подовая
Максимальная тепловая мощность, кВт650
ТопливоТвердое, Дрова, Древесные отходы естественной влажности
Отапливаемая площадь, м²5000-7150
769 000 р. Цена с НДС
background